2571 Bel AirAbilene, TX 79603




Mortgage Calculator
Monthly Payment (Est.)
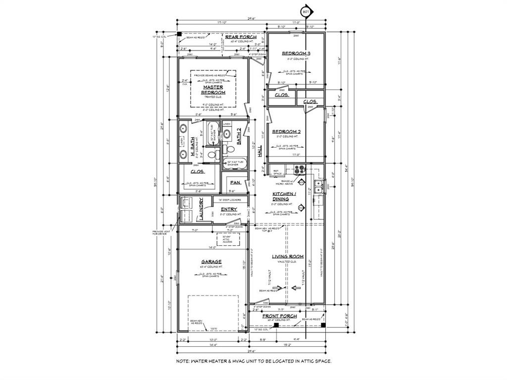
$926Anticipated completion April 30, 2026 for this new build home in Northwood – a 13-lot development conveniently located close to the intersection of 277 & I-20. The 1292 sf floor plan offers a large living room that transitions to kitchen. Walk-in pantry adjacent to laundry room off garage entrance with space for a small office area or mud room cabinetry. Central hallway leads to back of house & separates two, secondary bedrooms on one side of the hall from the primary bedroom suite on the opposite side. Walk-in, primary suite closet with multiple racks for hanging clothes & shelving for storage. Luxury vinyl plank throughout makes this home modern, attractive & easy care. LED can lighting throughout home provides for energy efficient illumination. Bedrooms all have ceiling fans with intergal LED light. Fencing and landscaping provided by builder. Photos are not of actual home, but of same floor plan built by this builder - finishes may differ between this home and actual home. This property is restricted to buyers that intend to occupy the home. Confirm completion date with broker before submitting offer.
| 2 hours ago | Listing updated with changes from the MLS® | |
| 16 hours ago | Listing first seen on site |
© 2020 North Texas Real Estate Information Systems. All rights reserved. Information is deemed reliable but is not guaranteed accurate by the MLS or NTREIS. The information being provided is for the consumer's personal, non-commercial use, and may not be reproduced, redistributed, or used for any purpose other than to identify prospective properties consumers may be interested in purchasing.
Last checked: 2025-12-22 12:25 PM CST



Did you know? You can invite friends and family to your search. They can join your search, rate and discuss listings with you.