2616 Hardwood DriveCelina, TX 75009




Mortgage Calculator
Monthly Payment (Est.)
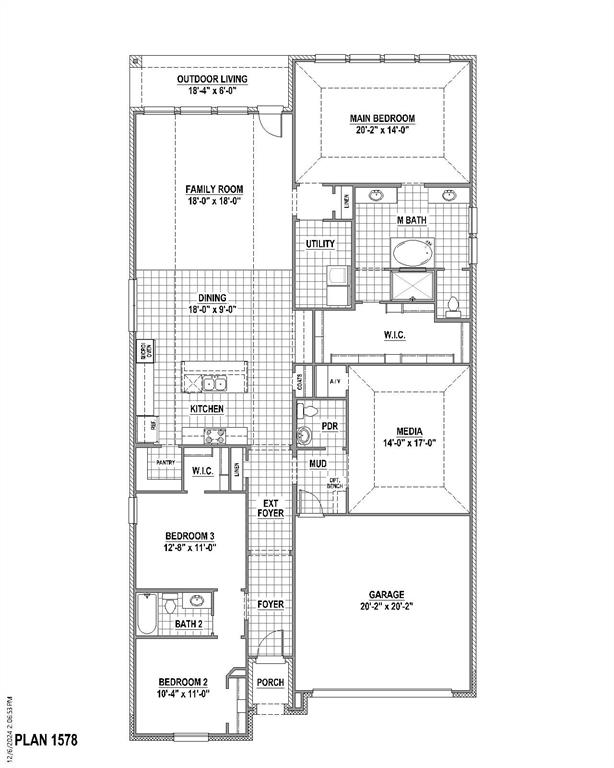
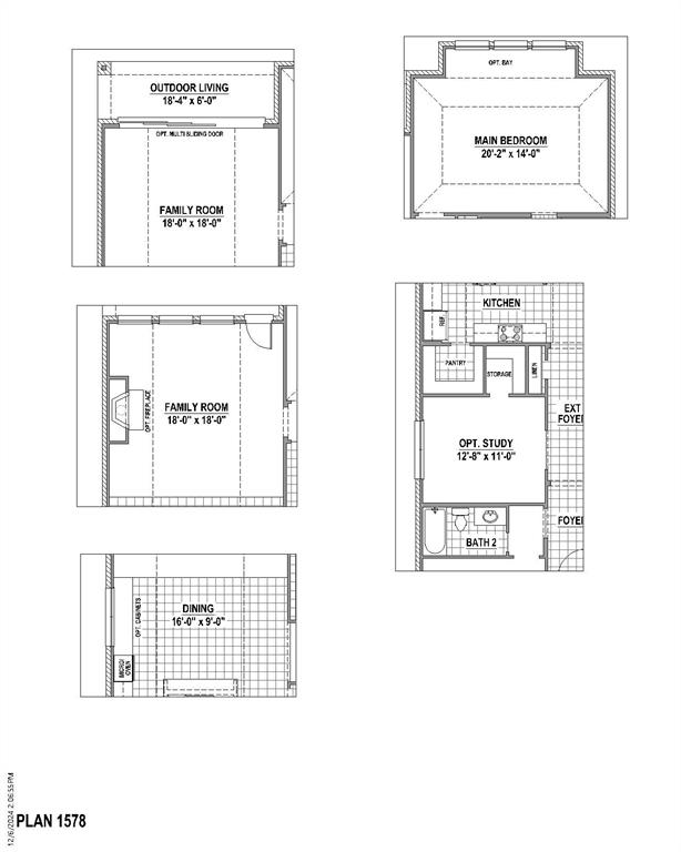
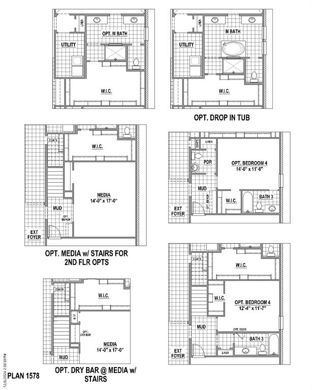
$2,580This exceptional one-story home stands apart with a longer lot, an expansive 13x18 covered patio, and thoughtful upgrades throughout—making it distinctly different from similar floor plans. Offering three bedrooms, a media room, and 2.5 baths, the layout is both functional and refined. Two generously sized secondary bedrooms are located at the front of the home, while the oversized 14x20 main suite is privately situated at the rear for maximum comfort and seclusion. The media room is strategically positioned away from the bedrooms, allowing you to enjoy immersive surround sound without disruption. At the heart of the home, the chef-inspired kitchen features abundant cabinetry, quartz countertops, and a walk-in pantry, and is seamlessly open to the dining and family rooms. These spaces are elevated by soaring 12-foot ceilings, creating an airy, open atmosphere ideal for entertaining and everyday living. The main bath is a true retreat, showcasing split vanities, and an oversized shower. The walk-in closet offers ample rods and shelving, while the utility room provides additional storage and enough space to accommodate a refrigerator or freezer. Hardwood flooring enhances the entry, extended entry, kitchen, dining, and family room, adding warmth and sophistication. Outside, the modern exterior design is highlighted by sleek square windows and striking metal accents. Truly one of a kind, this home combines upscale design, a superior lot, and carefully curated features—perfect for both entertaining and comfortable daily living.
| 4 days ago | Listing updated with changes from the MLS® | |
| 4 days ago | Listing first seen on site |
© 2020 North Texas Real Estate Information Systems. All rights reserved. Information is deemed reliable but is not guaranteed accurate by the MLS or NTREIS. The information being provided is for the consumer's personal, non-commercial use, and may not be reproduced, redistributed, or used for any purpose other than to identify prospective properties consumers may be interested in purchasing.
Last checked: 2026-01-23 06:55 AM CST



Did you know? You can invite friends and family to your search. They can join your search, rate and discuss listings with you.